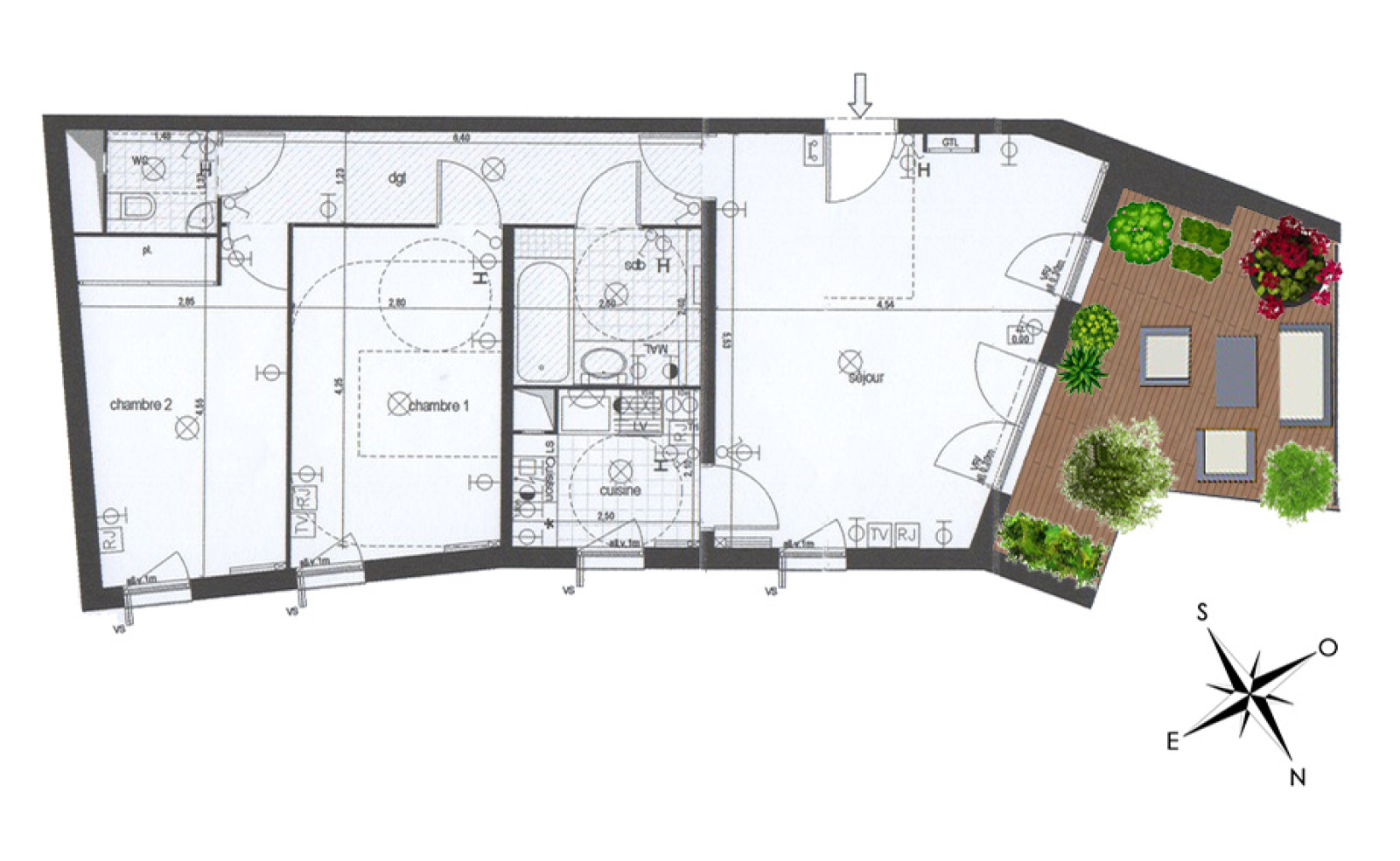
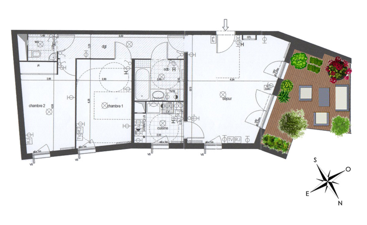
ECOQUARTIER DES DOCKS, Dans un secteur en pleine mutation avec l'arrivée imminente de la Hall gourmande et de nombreux commerces de qualité, à deux pas des écoles, du parc des Docks et de la ligne 13 et 14 Mairie de Saint Ouen, Appartement de 3 pièces principales de 69,50 m2 avec terrasse végétalisée de 15m2, séjour avec accès direct à la terrasse, cuisine équipée et aménagée, 2 chambres, salle de bains et wc séparés. Des prestations de qualité dans un immeuble de standing (certification HQE) Les charges incluent le chauffage, l'eau chaude et l'eau froide. Honoraires charges vendeur. Pour organiser une visite ou plus d'infos me contacter : Sophie Durand agent commercial mandataire en immobilier immatriculé au registre spécial des agents commerciaux (rsac) du tribunal de commerce de bobigny sous le numéro 511047870
Annonce proposée par un agent commercial