Aller à :

  • Aller à la recherche
  • Aller au menu principal
  • Aller au contenu
0
  • Ventes
  • Locations
  • Estimation
  • Recrutement
  • Contact
  • Site groupe
  • Biens vendus
0
VotreRecherche
Dans un rayon de
Budget
entre et €
Min €
Max €
  1. Accueil
  2. Vente
  3. Seine saint denis
  4. St denis
  5. Appartement
  6. T3
  7. Appartement 3 pieces porte de paris
Vendu
Réf : IVAP2200082851
Appartement 38.83 m²
Nombre de pièces 3
Nombre de chambres 2
Nombre de salles de bain 1

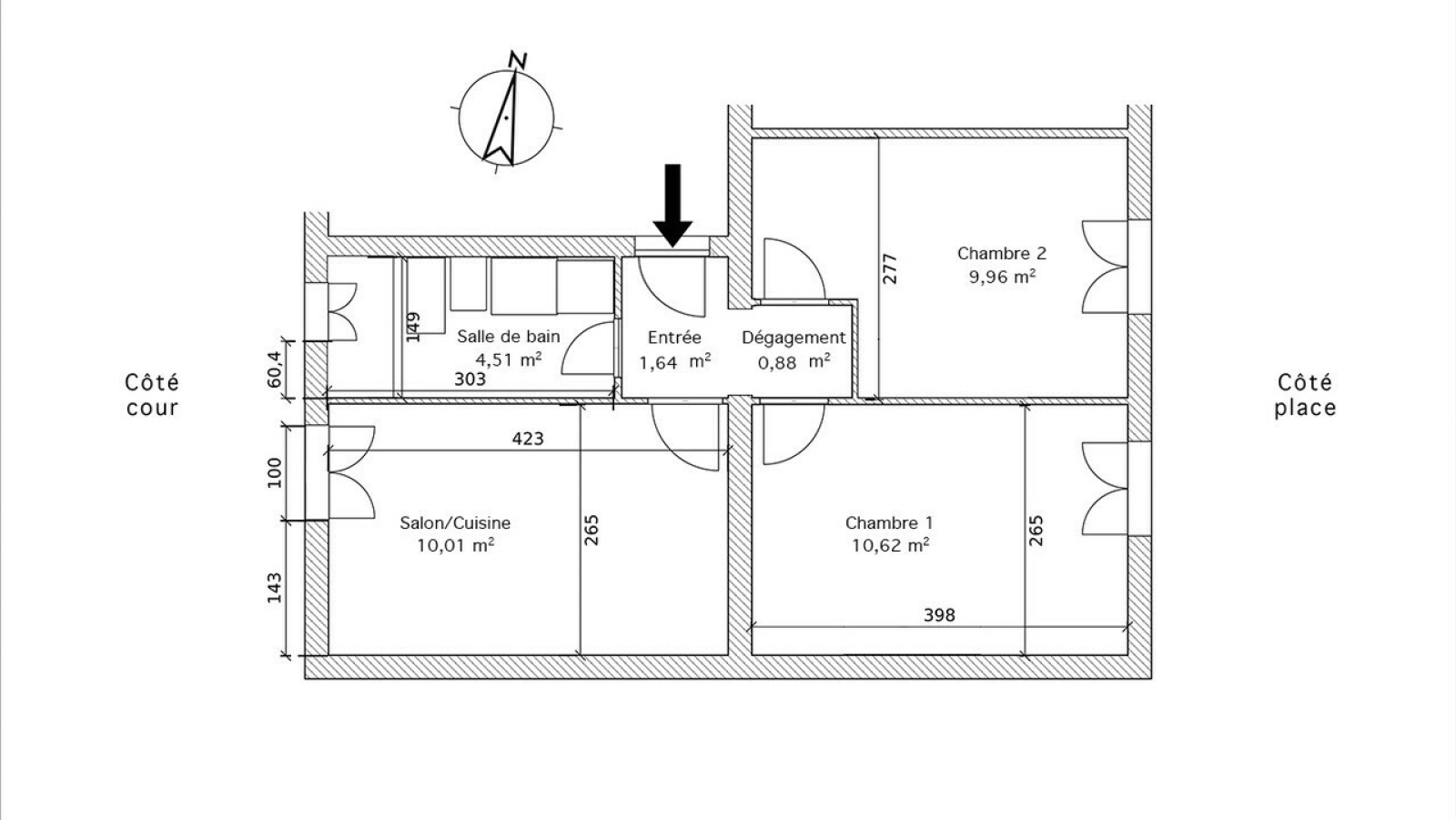
APPARTEMENT 3 PIECES PORTE DE PARIS Saint-Denis (93200)

Porte de Paris à deux pas du canal et du Square de Geyter, au premier étage d'un petit immeuble 1910, un appartement de 3 pièces principales traversant est/ouest aménagé coté ouest un séjour avec coin cuisine, une salle de bains avec wc et coté est deux chambres. L'appartement nécessite un rafraichissement, le sol est en parquet massif, le chauffage et l'eau chaude au gaz individuel. Une cave au sous-sol. Travaux de copro à prévoir. Honoraires charge vendeurs. Pour organiser une visite ou plus d'infos me contacter : Sophie Durand agent commercial mandataire en immobilier immatriculé au registre spécial des agents commerciaux (rsac) du tribunal de commerce de Bobigny sous le numéro 511047870

Annonce proposée par un agent commercial

  • Général
  • Détails +
  • DPE
  • Copropriété
  • Quartier
Caractérisque Valeurs
Code postal 93200
Surface habitable (m²) 38,83 m²
Surface loi Carrez (m²) 38,83 m²
Nombre de chambre(s) 2
Nombre de pièces 3
Etage 1
Ascenseur NON
Caractérisque Valeurs
Nb de salle de bains 1
Cuisine Américaine
Type de cuisine SEMI-EQUIPEE
Interphone OUI
Visiophone NON
Balcon NON
Terrasse NON
Cave OUI
Exposition Est-Ouest
Année de construction 1930
DPE GES
Caractérisque Valeurs
Copropriété OUI
Lot n° 3 ET 16
nombre de lots 11
Quote Part annuelle des charges 1 660 €
plan de sauvegarde NON
statut du syndic pas de procédure en cours
  • Commerces et santé
  • Loisirs
  • Ecoles
  • Transports
  • Pratique
Partager le bien
Nos outils
Imprimer Imprimer
Calculatrice financière

* Champ obligatoire

Partager l'annonce

* champs obligatoires

Les informations recueillies sur ce formulaire sont enregistrées dans un fichier informatisé par La Boite Immo agissant comme Sous-traitant du traitement pour la gestion de la clientèle/prospects de l'Agence / du Réseau qui reste Responsable du Traitement de vos Données personnelles. La base légale du traitement repose sur l'intérêt légitime de l'Agence / du Réseau. Elles sont conservées jusqu'à demande de suppression et sont destinées à l'Agence / au Réseau. Conformément à la loi « informatique et libertés », vous disposez des droits d’accès, de rectification, d’effacement, d’opposition, de limitation et de portabilité de vos données. Vous pouvez retirer votre consentement à tout moment en contactant directement l’Agence / Le Réseau. Consultez le site https://cnil.fr/fr pour plus d’informations sur vos droits. Si vous estimez, après avoir contacté l'Agence / le Réseau, que vos droits « Informatique et Libertés » ne sont pas respectés, vous pouvez adresser une réclamation à la CNIL. Nous vous informons de l’existence de la liste d'opposition au démarchage téléphonique « Bloctel », sur laquelle vous pouvez vous inscrire ici : https://www.bloctel.gouv.fr Dans le cadre de la protection des Données personnelles, nous vous invitons à ne pas inscrire de Données sensibles dans le champ de saisie libre.
Ce site est protégé par reCAPTCHA, les Politiques de Confidentialité et les Conditions d'Utilisation de Google s'appliquent.

Partager avec vos proches

Facebook Facebook
Messenger Messenger
Twitter Twitter
WhatsApp WhatsApp
LinkedIn LinkedIn
Copier le lien Copier le lien
Détail des diagnostics énergétiques
DPE GES
DPE ANCIENNE VERSION
Nous contacter

Remplissez ce formulaire, nous ferons de notre mieux pour vous répondre dans les meilleurs délais.

TRAD_MELTEM_voscoordonnees
TRAD_MELTEM_voredemande
Règlementation

* Champ obligatoire

Les informations recueillies sur ce formulaire sont enregistrées dans un fichier informatisé par La Boite Immo agissant comme Sous-traitant du traitement pour la gestion de la clientèle/prospects de l'Agence / du Réseau qui reste Responsable du Traitement de vos Données personnelles. La base légale du traitement repose sur l'intérêt légitime de l'Agence / du Réseau. Elles sont conservées jusqu'à demande de suppression et sont destinées à l'Agence / au Réseau. Conformément à la loi « informatique et libertés », vous disposez des droits d’accès, de rectification, d’effacement, d’opposition, de limitation et de portabilité de vos données. Vous pouvez retirer votre consentement à tout moment en contactant directement l’Agence / Le Réseau. Consultez le site https://cnil.fr/fr pour plus d’informations sur vos droits. Si vous estimez, après avoir contacté l'Agence / le Réseau, que vos droits « Informatique et Libertés » ne sont pas respectés, vous pouvez adresser une réclamation à la CNIL. Nous vous informons de l’existence de la liste d'opposition au démarchage téléphonique « Bloctel », sur laquelle vous pouvez vous inscrire ici : https://www.bloctel.gouv.fr Dans le cadre de la protection des Données personnelles, nous vous invitons à ne pas inscrire de Données sensibles dans le champ de saisie libre.
Ce site est protégé par reCAPTCHA, les Politiques de Confidentialité et les Conditions d'Utilisation de Google s'appliquent.

Se connecter
Espace propriétaire
Page d'accueil
Adhérents

© 2026 | Tous droits réservés | Traduction powered by Google |

  • Nos honoraires
  • Plan du site
  • Mentions légales
  • Admin
  • Nos liens
  • Politique RGPD

Comme beaucoup, notre site utilise les cookies

On aimerait vous accompagner pendant votre visite. En poursuivant, vous acceptez l'utilisation des cookies par ce site, afin de vous proposer des contenus adaptés et réaliser des statistiques !

Paramétrer

Cookies fonctionnelsCes cookies sont indispensables à la navigation sur le site, pour vous garantir un fonctionnement optimal. Ils ne peuvent donc pas être désactivés.

Statistiques de visitesPour améliorer votre expérience, on a besoin de savoir ce qui vous intéresse !
Les données récoltées sont anonymisées.

?

Google Analytics

En savoir plus