Mandat M100729
Pomérols, maison de caractère début 18ième avec pierre de taille, grandes cheminées et belle hauteur sous plafonds
Construit en R+2, cet ensemble T8 avec 3 chambres propose au RdC un salon (23 m²), une cuisine (24 m²), une chambre, une salle d’eau avec WC et une pièce avec évier en pierre donnant sur le patio.
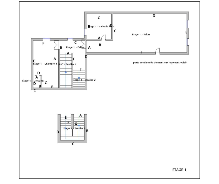
A l’étage vous trouverez un salon généreux de 45 m² (balcon), une chambre, une salle de bain avec WC.
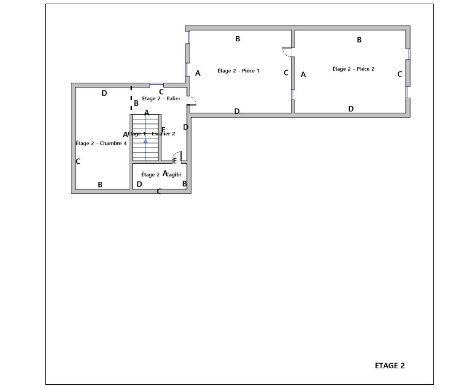
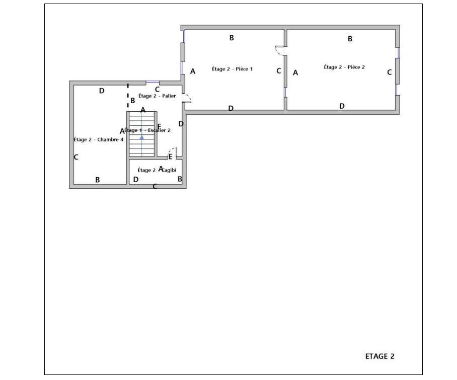
Au second, une chambre et deux grandes pièces actuellement utilisées comme atelier complètent l'ensemble.
Maison vendue en l’état avec liste de meubles.
DPE vierge, absence de moyen de chauffage fixe.
Prévoir enveloppe travaux isolation toiture, huisseries et chauffage.
Ensemble de 260 m² prêt à vivre avec séparation des niveaux et style de vie propres à chaque membre de la famille ou selon les activités envisagées.
Zone piétonnière avec accès privatif dédié, au calme et à deux pas de tous les commerces du centre.
Nombreux parkings à proximité.
Taxe foncière 966 €.
Le prix est de 260 000 € honoraires charge vendeur.
Pour plus d'informations, veuillez contacter Jean-Christoph Hasel (Agent Commercial : 420 192 536 RSAC Béziers)
Achetez avisé, vendez valorisé !
Annonce proposée par un agent commercial