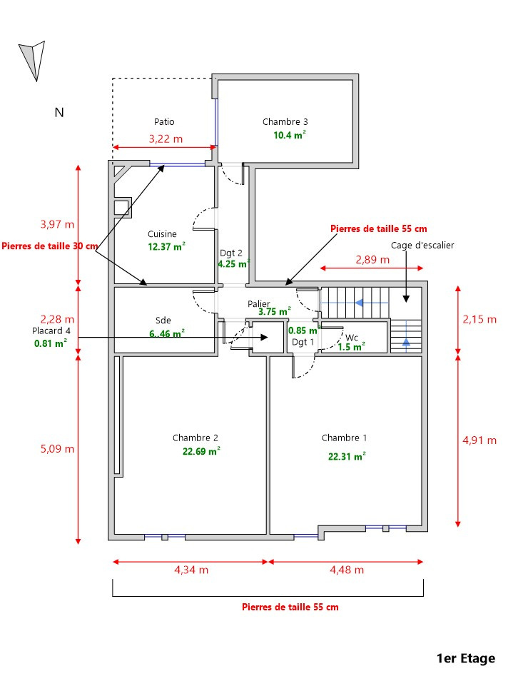
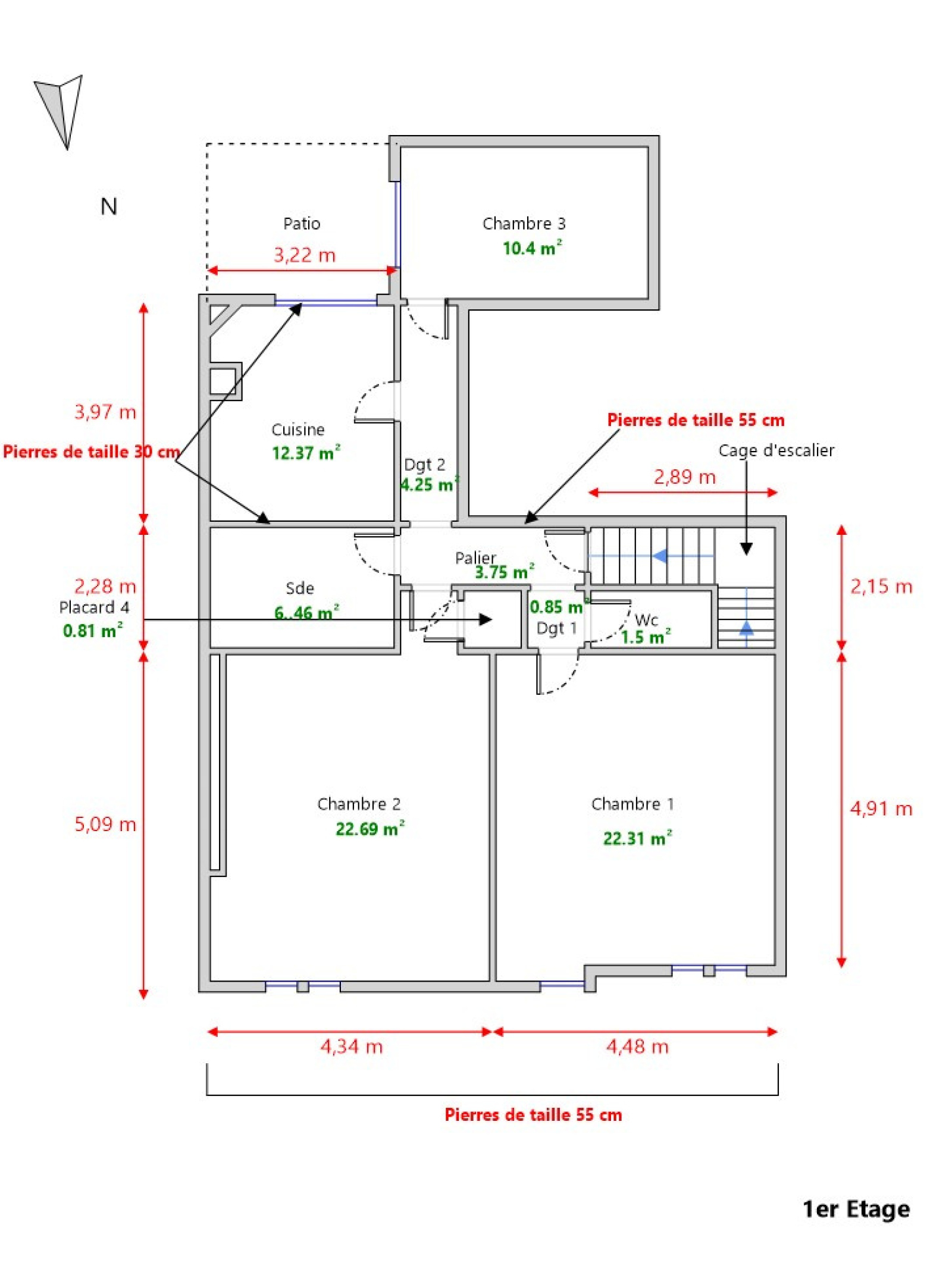
Contacter Pascal ROUSSEL au O612160318 agent commercial (EI) RSAC de Libourne 315148916 vous propose au rez de chaussée un local commercial de 60 m² anciennement occupé par la poste idéalement situé sur la place de l’église en face des autres commerces avec de nombreuses places de parking, avec accueil, bureau, salle de repos et wc, à l’étage un appartement de 84,50 m² à rénover entièrement composé d’une salle à manger, une cuisine, deux chambres, une salle d’eau et un wc.